减速机系列
发表日期:
1、概述
本系列是在原化工部标准HG5-747-78的基础上改进和发展的产品,其中PV型肛用窄V带传动,效率更高,寿命更长;PT型采用同步齿形带传动,其外形紧凑,传动比准确,无滑差又节能。
2、减速机选型表
×
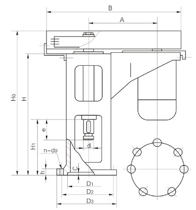
注:PB4若选用带括弧的安装尺寸,订货时请注明。
本系列减速机输出轴只有一种形式,并配套供应夹壳联轴器(HG5-213-65),若有特殊要求,须在订货时说明。
本系列允许正反方向运转,也可用于有防爆要求的场合,除配上防爆电机外,还须配上专用防静电V带。
PV1
PT1
PV2,PT2
PV3,PT3
PV4
PT4
PV5,PT5
3、P型减速机主要参数及尺寸
PC,PV
H8
PC,PV
PT1,PA4
PV2,PT2
PV3
PT3
PC5,PV5,PT5
65m/6
720
145
485


